+371 67114284

602-ая серия

Описание

Здания этой серии строили от середины 70-ых до начала 80-ых годов, когда их строительство сменяли здания 119 серии. Дома 602 серии - девятиэтажные крупнопанельные здания (встречаются также 6-этажные), несущие конструкции которых формируют панели стен из керамзитобетона и железобетонные пластины перекрытия. Здания упомянутой серии главным образом находятся в следующих районах: Пурвциемс, Межциемс, Иманта, Плявниеки, Зиепниеккалнс, Вецмилгравс, Илгуциемс.

Ежедневно City Real Estate предлогает клиентам приобрести больше чем 50 квартир в зданте этой серии.

Плюсы:

  • удобная планировка квартир (особые 2-комнатные квартиры); 
  • более удобные и просторные лестничные площадки и подсобные помещения. 

Минусы:

  • возможные проблемы с гидроизоляцией наружных стен; 
  • возможны проблемы с гидроизоляцией наружных стен - в панелях появляется микротрещины; 
  • минимальные возможности перепланировки.

Использованная литература для подготовки информации :
www.lv.wikipedia.org
Статья « Многоэтажные жилые районы в Риге»

Запрещено публиковать данные без ссылки на источник и письменного согласия SIA “City Real Estate”!

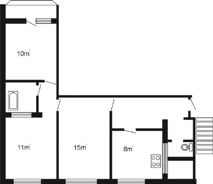
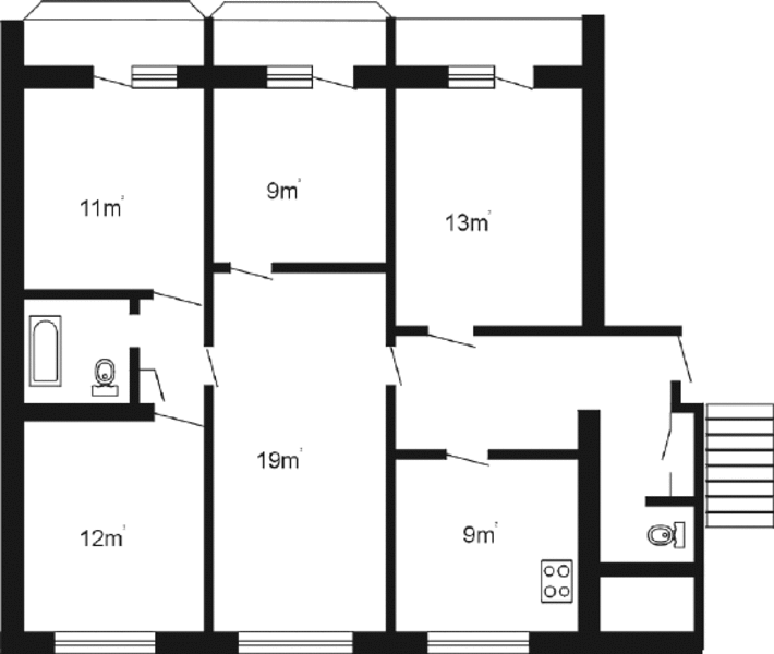
Планировка

1 комната, 35m2
2 комнаты, 41m2
2 комнаты, 49m2
3 комнаты, 63m2
4 комнаты, 73m2
5 комнаты, 78m2

Видео

Поиск
City Real Estate рекомендует
Сдают квартиру в Риге, Центре

Сдают квартиру в Риге, Центре
Улица Рупниецибас, 4 этаж, 3 Комнаты, 96.10m2
1600.00 EUR 16.65 EUR / m2

Сдают дом в Рижском районе, Кекавской волости

Сдают дом в Рижском районе, Кекавской волости
Улица Лидума, 1 этажей, 5 Комнаты, 240.00m2
2200.00 EUR 9.17 EUR / m2

Сдают квартиру в Риге, Центре

Сдают квартиру в Риге, Центре
Улица Стабу, 3 этаж, 2 Комнаты, 79.50m2
1350.00 EUR 16.98 EUR / m2

Все предложения