+371 67114284

104 series

Description

Construction of buildings of this series was started in early 1970s, and unlike to other series buldings, this do not form similar housing estates, but is located in between other series buildings. These series apartments have functional and comfortable layout – next to bedroom there is toilet facilities, and next to guestroom is kitchen. These buildings are typical spacious loggias, which when glazed, can be used like summer veranda. These series apartments are one of most demanded in real estate rent and trade deals.
104.series buildings are five and more storeys high and are found in nearly all housing estates of Riga.

Pros:
• A functionally sound layout;
• Large loggias which can be transformed into verandas;
Cons:
• Problems with heat leakage through panel joints possible.

Used literature for information prepare:

www.lv.wikipedia.org , Article
„Many storey residental areas in Riga”

Data publishig without reference to source and without Ltd. „City Real Estate” written  agreement is forbidden!

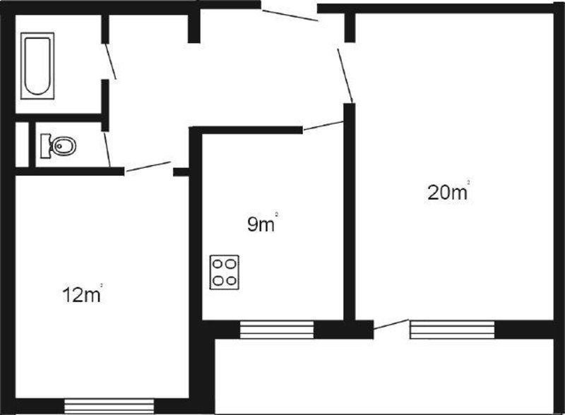
Apartment plans

1 room, 42m2
2 rooms, 57m2
3 rooms, 69m2

Video

Search
City Real Estate recommends
Apartment for rent in Riga, Vecriga (Old Riga)

Apartment for rent in Riga, Vecriga (Old Riga)
Riharda Vagnera street, 4th floor, 4 rooms, 123.40m2
3000.00 EUR 24.31 EUR / m2

Apartment for sale in Riga, Riga center

Apartment for sale in Riga, Riga center
Jeruzalemes street, 4th floor, 2 rooms, 127.30m2
590000.00 EUR 4634.72 EUR / m2

Commercial premises for lease in Riga, Riga center

Commercial premises for lease in Riga, Riga center
Elizabetes street, 1th floor, 2 rooms, 129.00m2
1100.00 EUR 8.53 EUR / m2

Apartment for sale in Riga, Ziepniekkalns

Apartment for sale in Riga, Ziepniekkalns
Ziepniekkalna street, 6th floor, 3 rooms, 133.00m2
255000.00 EUR 1917.29 EUR / m2

House for rent in Jurmala, Dzintari

House for rent in Jurmala, Dzintari
Aglonas street, 2 floors, 4 rooms, 133.00m2
2300.00 EUR 17.29 EUR / m2

Apartment for rent in Riga, Ziepniekkalns

Apartment for rent in Riga, Ziepniekkalns
Ziepniekkalna street, 6th floor, 3 rooms, 133.00m2
1500.00 EUR 11.28 EUR / m2

Apartment for rent in Riga, Riga center

Apartment for rent in Riga, Riga center
Artilerijas street, 2th floor, 4 rooms, 140.00m2
3000.00 EUR 21.43 EUR / m2

Apartment for rent in Riga, Riga center

Apartment for rent in Riga, Riga center
Rupniecibas street, 3th floor, 4 rooms, 145.00m2
2000.00 EUR 13.79 EUR / m2

Apartment for rent in Riga, Vecriga (Old Riga)

Apartment for rent in Riga, Vecriga (Old Riga)
Miesnieku street, 3th floor, 4 rooms, 157.80m2
4103.00 EUR 26 EUR / m2

Apartment for rent in Riga, Vecriga (Old Riga)

Apartment for rent in Riga, Vecriga (Old Riga)
Miesnieku street, 1th floor, 4 rooms, 192.00m2
4992.00 EUR 26 EUR / m2

View all offers